こんにちは。本日ブログ担当の河野です。
今日のお話は植栽計画について。
複数の木を使って植栽計画を立てる場合、初めから樹種を決めてしまうことはまずありません。
最初はどの位置に、どのくらいの大きさの木を植えるかを考えることから始めます。
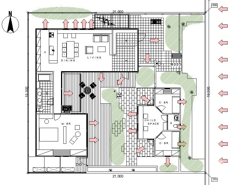
例えば、ガレージの真ん中に木を植えることは絶対にありませんから、まずゾーニングを行います。
具体的にはガレージ、アプローチ、サービスヤード、デッキやテラスなど最低限目的が決まっている範囲を割り振ります。
それが終わると、どの程度を植栽スペースとして確保できるかを考えていきます。
(図1:デッキ、テラス、ガレージ、アプローチとそれぞれの範囲を決めていき、残りを植栽に割り当てます)
まず中高木から決めていきますが、この場合もただやみくもに植えていくだけではいけません。
例えば、道路からの目隠し、日除け、窓からの景観、侵入防止など、役割を考えていけば、そこにどんな木が必要かがわかります。
目隠しなのにH=1.5では低すぎますし、西日除けが必要なところに西日に弱い木を計画するのはまずいです。
窓からの景観を意識するなら、綺麗な花の咲く木がいいですし、フェンスの代わりとして用いるのであれば、生垣を植えるほうがいいでしょう。
(図2:矢印が視線を表す。道路からの目隠しや窓からの景観を考慮する)
(図3:大よその計画図)
(図4:高さのバランスも重要なポイント)
外構工事が終わると、いよいよ何を植えるかを決めていきます。
ここから重要になってくるのは方位、つまり太陽の動きです。植物を育てるうえで日当たりは必ず必要ですが、キツイ日当たりが苦手な木もあるので注意が必要です。
次に考えるべきは、常緑樹と落葉樹とのバランスです。最近は落ち葉の掃除の関係で落葉樹を嫌う人が結構多いです。
全て常緑樹はあってもいいと思うのですが、全て落葉樹では冬場になると、とても寂しいのであまりオススメはできません。
後は植えるスペースと成長速度も考えたほうがいいです。
また同じ種類の木であっても樹形などはそれぞれ別のものですので、実際の木を見てから決めるほうがいいと思います。
この図面でしたら、どのように常緑と落葉を分けるべきだと思いますか?
一度考えてみられると、案外楽しいかもしれませんよ。




